廣東星藝裝飾集團廣州有限公司,一起尋找好裝修!
您的當前位置:首頁>裝修案例>天鵝灣
分享到 微信
設計經驗:17年
上傳作品:26套
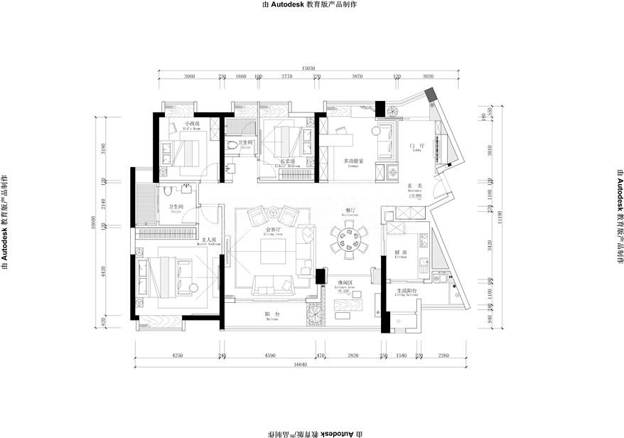
樓盤:天鵝灣
戶型:三室兩廳
面積:
設計風格:美式風格
工程造價:
售前咨詢
裝修熱線
預約量房
回到頂部
24小時全國服務熱線
(c)Copyright 2021 廣東星藝裝飾集團有限公司廣州分公司 版權所有 粵ICP備12080332號 公安部備案號 44010602004978號