方案展示
設計說明
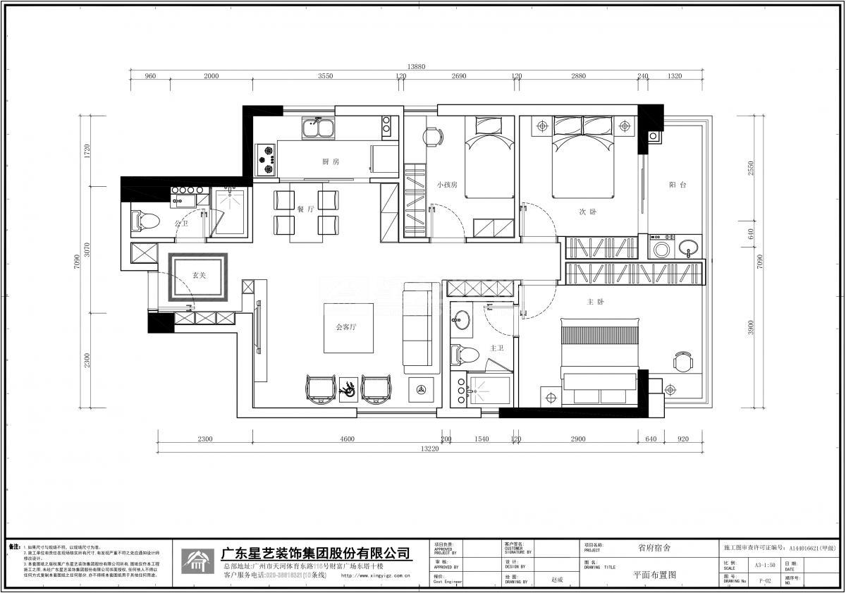
為了孩子讀書,客戶把家搬到公司的附近,因為地段和資金有限,所買的房子面積和朝向均不滿意,格局上公共空間與私人空間關系凌亂,難以決擇出入陽臺的房間給誰住,收納遠遠不夠,考慮到生活中的使用方便,建議客戶保留兩個洗手間,然后將廚房與臥室調換,帶陽臺的房間給長輩住,畢竟平時都是長輩在家收拾用得多。每一個房間都盡可能配足夠居住者使用的收納柜子,再將過道都利用起來,沒有過多裝飾,但對流,合理,關系親密,溫馨整潔。
[展開]-
陳可可的其它設計案例
-
現代風格的其它設計案例
關注我們
分享到
微信

立即預約
在線咨詢
在線客服
公安部備案號 44010602004978號